开始装修之前,业主们会接触到很多的装修图纸。很多人一看到这些图纸就头大了,看别提挑错了,这怎么办呢?别急,其实只要你静下心来,一个个的去学习,它们其实并不难。首先,就让我们一个一个的来认识一下都有哪些装修图纸吧!

原始测量图就是你家房子最原始的尺寸,包括具体开间尺寸、墙体厚度、房间梁柱位置尺寸、层高、门窗洞口的尺寸位置、各项管井(上下水、煤气管道、空调暖管、进户电源)的尺寸、位置、功能等项目,它是你接触到的第一套图纸,也是其他一切设计图纸的基础,所以如果一开始的测量图纸出现偏差,其他的设计图纸和施工都会因此出现误差,导致整个工程无法正常进行。
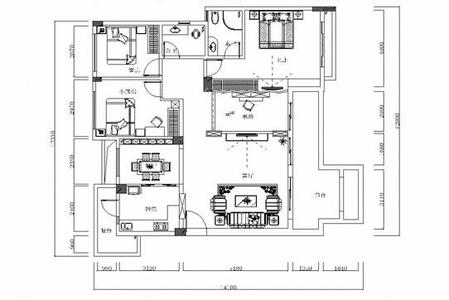
这套图纸是设计师给你的第一套图纸,是建筑物布置方案的一种简明图解形式。平面布局图中有:墙体定位尺寸,有结构柱、门窗处应注明宽度尺寸;各区域名称要注全,如客厅、餐厅、休闲区等,房间名称要注全,如主卧、次卧、书房等;室内、外地面标高、墙体厚度应注明;如有楼梯,标明平面位置的安排、上下方向示意及梯级计算;门的开启方向;活动家具布置及盆景、雕塑、工艺品等的配置。
吊顶设计图也就是对于你家吊顶如何设计和布置的详细图解,是吊顶装修项目中最重要的图纸之一。它要求标明天花造型的尺寸定位、灯具位置及详图索引,并应标注天花底面相对于本层地面建筑面层的高度,同时还要注全各房间的名称,以便后续施工。
地面材质图,顾名思义是关于地面材质的任何内容的,其实也就是你家地面要铺设哪些材料、图案如何设计,它标明需要铺设的地面材料种类、地面拼花、材料尺寸及不同材料分界线。
配电图是设计图纸中十分重要的一部分,也是业主们非常重视的装修图纸,在配电图中,各种电源插座的位置安排都需要详细标示,业主在查看配电图时,需要注意的是插座的位置、数量,位置的安排要根据实际使用的方便性安排,要根据配电图的安排去综合考虑门窗、家具的位置,比如不能让插座被门窗遮蔽,影响正常使用等问题。
编辑总结:其实,最重要的装修图纸并不多,也并不难了解,业主们在核对这些装修图纸的时候一定要耐心细致,不要存在侥幸心理,一定要把好施工前的审核这一关。
百度搜索“爱华网”,专业资料,生活学习,尽在爱华网!
爱华网



