相关解答一:抽水泵扬程与功率的关系
功率 扬程 流量 是正比的

相关解答二:抽水泵烧了
绕组发热烧毁。有些水泵的外壳必须要用水或油做冷却介质,来给水泵降温。如果缺少这种冷却介质,水泵会在短时间内烧毁。而另外有些水泵是短时间工作制的,也就是只能在较短的时间内运行,超过允许的运行时间,水泵也会烧毁。
相关解答三:怎么用吸管做抽水泵
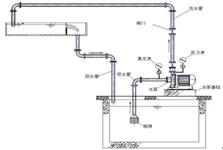
如果是用虹吸管矗抽水泵抗洪,可参照下面这幅图做,出水管阀门及出水管口必须低于进水管口,进水口水位必须高于出口水位就可以。
(图片来自百度图片)
相关解答四:抽水泵怎么读
choushuibeng
相关解答五:抽水泵,打一字 5分
石。抽水泵,泵去掉水,石。
相关解答六:抽水泵(打一字)
石
抽掉泵的水了嘛
相关解答七:抽水泵哪种比较好?
水泵种类型号的选用是根据现场具体情况定的,它们都各自有自己的优点用处,把你的需要安装水泵的现状现有的条件,干什么用要求说一下才好确定,那种适应你的。
相关解答八:家用抽水泵
看你的问题是管中有空气,还有进水不足问题。首先你要说下这自动增压泵装在什么位置,是接在市政自来水管上,还是水井的抽水泵。
一般这种小泵不足以使电灯暗一下,除非在电网进压很差情况下,可以常开水龙头让水泵运行一段时间,如果出水还是断续的话,是进水流量不足问题。如果打开水龙头出现水泵间断运行,考虑水泵接触器问题,可适当调大自启动压力。(上面打开水龙头,去现场听泵的声音,以确定是管子空气断流还是水泵间断的问题)。一般打开水龙头是不存在停泵问题的。
相关解答九:抽水泵的用途
抽水泵的作用就是把地处的水运到高处,常用的就是离心泵自吸抽水泵(真空泵) 离心泵工作前要先向泵叶轮内灌满水,整工作时离心泵的叶轮在电动机的带动下产高速旋转,充满于叶轮的水被高速甩出进入到压力低的出口方向或者下一级叶轮的进口,同时,在叶轮的中心处由于液体被甩出而形成局部真空,进口处的水便在大气压力的作用下进入到叶轮中,这样连续被甩出又进入,就形成了离心泵的连续工作,水便在压力的作用下被输送到各处。 自吸抽水泵又称真空泵,抽水前不用灌水,由于泵壳的特殊设计。其密封性能较一般的离心泵高,且电机停运后泵壳里的水不会自动排空,电机带动涡轮高速旋转,迅速使泵内形成负压(真空)。利用大气压将水压至泵壳,后再离心扬程,在压力的作用下被输送到各处。
相关解答十:鱼缸用的抽水泵
也就是电动机的原理,通电导体在磁场中受力的作用。电导线在磁场中受力运动的方向跟电流方向和磁感线(磁场方向)方向有关。电动机工作原理是磁场对电流受力的作用,使电动机转动。它是将电能户变为机械能的一种机器。
电动机使用了电流的磁效应原理,电动机按使用电源不同分为直流电动机和交流电动机。 首先搞一个像马达这样的东西,马达中间不是有根铁棒吗?再找一个圆柱形的磁铁,和叶轮连接在一起,把磁铁套进铁棒,固定好,别让她掉出来,再接上电源。 唉,还不如自己买个好的,也就几十块。安全啊!
百度搜索“爱华网”,专业资料,生活学习,尽在爱华网
爱华网


