



家装开关插座是每个家庭都不能少的,随着生活水平的提高,家用电器也随之越来越多,家装开关插座也就逐渐多起来,于是家装开关插座布置又成一个问题。家庭开关插座布置首要就是要根据房间功能的使用来定,如厨房、卫生间等等就要结合冰箱等

装修的时候,到处都要安装插座开关,以便我们生活中的使用方便,但是大家知道开关插座如何安装吗,墙壁插座怎么拆呢。接下来小编就来给大家介绍一下吧。一、开关插座装置窍门1、开关插座不能装在瓷砖的花片和腰线上。2、开关插座底盒

在购买开关插座来家装的时候,有的人会比较的关心特牌开关插座怎么样,以便根据了解来判断是否选择购买特牌开关插座。当决定购买特牌开关插座之后,人们又会关心特牌开关插座价格如何,以便在购买特牌开关插座时有一个可以参照的价格。

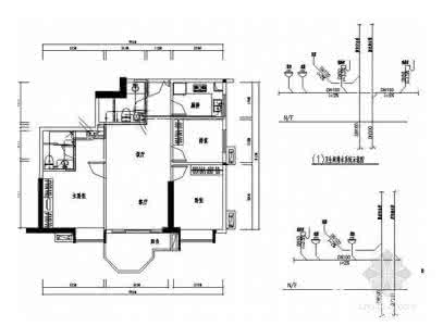
家居内的开关、插座的位置怎么安排,看起来是小事,但是不注重的话,以后就会出现乱拉排插的状况。开关插座怎么布置才好呢?下面小编就来告诉大家,有需要的朋友收藏吧!

经验装修必备!各房间开关插座布置表来源: 厦门装修 2016/7/10 17:10:01 围观: 453℃厦门装修始于2013年5月,厦门家居建材业第一认证新媒体平台。装修投入使用后,很多发现家里的插座开关不够用,很苦恼。其实,家居内的开关、插座的位置