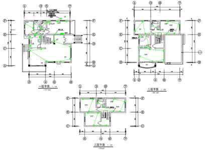
史上最全自建房别墅套图(含水电建筑结构) 立等可建
一、建筑平面布置图

二、结构图
三、给排水图纸
四、弱电图纸
五、防雷图纸
六、照明图纸
七、插座图纸
一、建筑平面布置图

二、结构图
三、给排水图纸
四、弱电图纸
五、防雷图纸
六、照明图纸
七、插座图纸

胶原蛋白的功效与作用(史上最全)——简介 胶原蛋白是一种生物性高分子物质,英文学名Collagen。在动物细胞中扮演结合组织的角色。为生物科技产业最具关键性的原材料之一,也是需求量十分庞大的最佳生医材料。其应用领域包括生医材料、化

酒逢知己千杯少原文地址:史上最全的中国名酒点评(懂酒之人必看)作者:济宁律师史上最全的中国名酒点评、懂酒之人必看!一、泸州老窖(高端国窖1573)第一批被评上的中国名酒,也是目前国内销量最大覆盖最广的白酒品牌之一,是浓香型白酒的代表,酒
有多少人真正懂得换档?史上最全换档讲解有多少人真正懂得换档?史上最全换档讲解目前生产的汽车,变速器都配有同步器。变速器有了同步器后,有效地避免了齿轮的撞击,大为简化了换档操作。现在,不管是加档还是减档,换挡时不必再用传统的两脚

原文地址:谁看了都想抢!史上最全的27套胎教音乐大全下载作者:揭秘色娱胎教音乐对胎儿的作用知儿网在这里就不再哆嗦,不了解的宝妈直接百度就知道。为了咱们后代着想,说大一点的就是为了我们这个的国家未来着想,再大些就是为这个世界的未来

原文地址:史上最全的kindle[mobi]电子书之一作者:kindler8下载:2099.mobi(1014.1KB)CIA教你识穿他人谎言.mobi(749.0KB)X光下看腾讯.mobi(510.7KB)一个男人的城市攻坚战.mobi(441.5KB)一个都不正经.mobi(385.6KB)一位美国人嫁与一位中