窗帘盒是是隐蔽窗帘帘头的主要方法,在进行吊顶和包窗套设计时,就应进行配套的窗帘盒设计,才能起到提高整体装饰效果的作用。今天,一位业主问秀巢网小编:吊顶时预留的窗帘盒应该做多宽多高才算正确?
恰好前段时间,也有业主反馈:悲催了,购买的窗帘无法安装了,原因竟然也是窗帘盒的问题。所以,秀巢网小编就以文章的形式集中回复一下。
根据顶部的处理方式不同,窗帘盒有两种形式。一种是房间有吊顶的,窗帘盒应隐蔽在吊顶内,在做顶部吊顶时就一同完成;另一种是房间未吊顶,窗帘盒固定在墙上,与窗框套成为一个整体。
那么到底该做多大的窗帘盒呢?虽然说没有固定的标准,但秀巢网小编还是根据经验来建议一下,免得大家纠结:
一、窗帘盒的深度建议
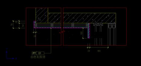
窗帘盒的深度(上下为深)建议10公分到15公分。
这样不仅可以遮住轨道,也方便以后拆洗窗帘。如果再深了,要把窗帘拆下来,也是一件不容易的事情。
二、窗帘盒的宽度建议
窗帘盒的宽度(前后为宽),具体的宽度尺寸,首先需要取决于你设计几层窗帘布:

1、正常单层窗帘:10-12公分
特别不建议做到10以内,这样太小了,会经常拉动,在拉动窗帘布时,双层更会摩擦,甚至拉不动。哪怕是你只做单层,秀巢网小编也建议你做到10公分以上,除非你确定你就是要单层,以后也不想加双层。这儿,也要特别注意,单层的情况下,不管你安装布帘还是窗饰产品,盒都不能太深,重要的是窗饰产品,太小太深,根本没有办法安装窗饰的,看起来是可以安装,但没有安装的操作空间,所以还是安装不上的。
2、双层窗帘:12-15公分
双层为:布、纱,12公分一般是可以的,但为了防止误差,可以适当做宽一点。
3、三层窗帘:15-20公分
三层为:布、纱,楣,这样十五公分最合理,适当宽一点也没关系,这样相互不摩擦。
4、四层窗帘:20公分以上
四层为:布,纱,遮光布,楣,秀巢网小编强烈建议要20公分以上。当然,也可以把遮光面缝到布一起,这样也是可以,可以减少窗帘布所占用的空间,但不利于清洗。当然,可以把布和遮光布分季节来挂,夏天挂遮光布,冬天挂窗帘布。
5、电动窗帘
手动轨:单层窗帘一般12-15公分;双层窗帘18-20公分。
电动轨:要考虑电机的大小预先留好电源,单层窗帘最少也要18公分左右,如果是双层一般25-30公分;如果是曲轨电动轨就要考虑弧度问题了,可能会更宽了。
当然了,电动窗帘订购,秀巢网小编建议应该在木工进场前就问清楚厂家的具体要求,不同类型对安装的要求也是不同的。
三、窗帘盒的长度
窗帘盒的总长,秀巢网小编建议要比窗户边宽过20-30公分,这样便于窗帘布收紧时把窗户玻璃光线挡住,当然了,窗帘宽度做到满墙也是可以的,主要看设计风格和个人的爱好。
四、窗帘盒制作提示
最后需要提示的是,吊顶时制作窗帘盒不要只做单板立板,而要做U型的木槽,木槽的高度要适合窗帘轨道的厚度,宽度要适合窗帘轨道的宽度安装。秀巢网小编认为,最没有良心的工队在U型顶部即安装窗帘的部位没有衬底或者用石膏板衬底,有良心的工队是使用大芯板或者刨花板衬底,更有良心的工队,做双层加固,错缝拼接。
爱华网



